Accessory Dwelling Units (ADUs)

The City of Patterson offers a streamlining process for Accessory Dwelling Units (ADUs). There are five (5) distinct sets of ADU building plans are available upon submitting an application for a building permit. See below for details on each of the five options:

NameSquare FeetMax DimensionsLayout
260 Studio260 SF
20' x 13'Studio
562 Serenity562 SF23' 8" x 35'1-Bedroom
744 Comodo
744 SF29' x 31'1-Bedroom
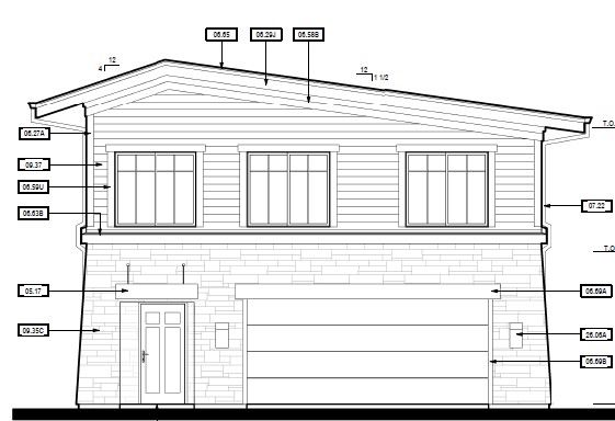
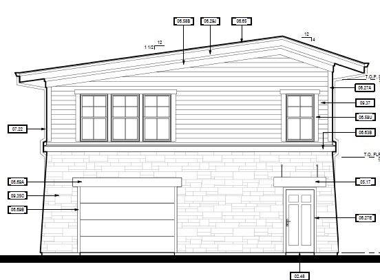
798 Trek
798 SF30' x 30'1-Bedroom, Above Garage
896 Double
896 SF28' x 28'2-Bedroom


For additional information, download the City’s ADU Information Package or the California Department of Housing and Community Development ADU Handbook.


“260 Studio” - Download Plans

260 Studio 1

260 Studio 2

“562 Serenity” - Download Plans

562 Serenity 1

562 Serenity 2

“744 Comodo” - Download Plans

744 Comodo 1

744 Comodo 2

“798 Trek” - Download Plans

798 Trek 1

798 Trek 2

“896 Double” - Download Plans

896 Double 1

896 Double 2